Engineering Nxm Force, LLC provides precision mechanical engineering services specializing in custom fabrication drawings.Core Competencies:
- Fabrication Drawing Services
- Mechanical Systems Design
- Engineering Consultation
- Project Management Support & CoordinationDifferentiators:
- Specialized focus on contractor needs
- Fast turnaround and responsive communication
- Deep expertise in mechanical and piping systems

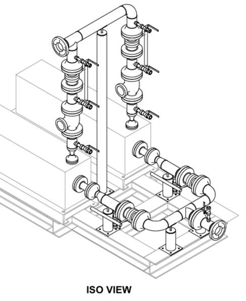
Engineering Nxm Force, LLC specializes in professional engineering design services with a focus on
mechanical systems, pump skid assemblies, and piping system layouts. We deliver high-quality fabrication
drawings, 3D CAD models, and technical schematics tailored for manufacturing, construction, and industrial
applications.
Our expertise supports contractors, fabricators, and project managers in need of accurate and buildable
documentation for engineered systems. From single-component assemblies to fully integrated piping and
pump packages, we design with precision, clarity, and real-world fabrication in mind.


Engineering Nxm Force, LLC is ready to help on your project. Please fill out the form below.
A representative will reach out within 48 hours.
Project Gallery Slideshow